Byty - pronájem / vloženo 03.02.2026
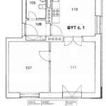
Čujkovova 1709/9, byt č. 1, 1+1 – 52,53 m², Ostrava-Zábřeh
Byt po opravě
| Typ prostoru | Byty - pronájem |
| Typ pronájmu, výběrového řízení | smluvní nájemné |
| GPS (latitude) | 49.7917950 |
| GPS (longitude) | 18.2317222 |
| Popis | Byt po opravě |
| Typ transakce | Pronájem bytu za smluvní nájemné za m2. O pronájmu bytu rozhoduje Rada městského obvodu Ostrava-Jih dne 12.03.2026. Vybraný uchazeč je povinen před uzavřením smlouvy o nájmu bytu složit peněžitou jistotu, která odpovídá trojnásobku měsíčního nájemného za započtenou podl. plochu bytu (nejedná se o předplacení nájemného). |
| Doba nájmu | na dobu určitou – nejdéle na 12 měsíců s možností obnovy nájmu |
| Stanovení výše záloh na služby spojené s užíváním bytu | Zálohy se odvíjejí od spotřeby uživatele bytu a spotřeby energií za celý dům:
|
| Lhůta pro podání přihlášky | 23.02.2026 |
| Obec | Ostrava |
| Lokalita | Zábřeh |
| Ulice a č.p./č.o. | Čujkovova 1709/9 |
| Číslo bytu | 1 |
| Výměra skutečná | 52.53 |
| Výměra započtená | 50.63 |
| Počet místností, dispozice | 2+1 |
| Typ konstrukce | Cihla |
| Nadzemní podlaží | 1. |
| Počet nadzemních podlaží celkem | 4. |
| Typ vytápění | dálkové |
| Vybavení | Sklep, Inženýrské sítě - elektřina, Inženýrské sítě - plyn, Kuchyňská linka, Plynový sporák |
| Kontaktní osoba | INFORMACE K TECHNICKÉMU STAVU BYTU: Jiří Holuša, OBH, odd. technické, budova D, kancelář D107, tel: 599 430 174; INFORMACE K PŘIHLÁŠCE DO VÝBĚROVÉHO ŘÍZENÍ NA PRONÁJEM BYTU: Ing. Jana Holubová, OBH, odd. bytové, budova D, kancelář D028, tel: 599 430 415; PROHLÍDKA BYTU: byt bude zpřístupněn ve středu dne 18.02.2026 od 14.15 do 14.30 hod. za účasti Petra Kručinského, tel: 599 430 375 |
| Minimální doporučené nájemné za m²/měsíc | 130 |
| Upřesnění minimálního doporučeného nájemného za m²/měsíc | V ceně není zahrnuto nájemné za zařizovací předměty bytu, nejsou zahrnuty zálohy na služby. |










